Projekt domu Eco 12

Powierzchnia użytkowa:
105,95m2
Powierzchnia zabudowy:
89,33m2
Garaż:
16,97m2
Kubatura:
573m3
Wymiary budynku:
12,54m × 7,61m
Wysokość budynku:
8,46m
Kąt nachylenia dachu:
35o
Min. wymiary działki:
20,54m x 11,61m

RZUT PARTERU

1. Wiatrołap: 4,08 m2
2. Korytarz + schody: 6,46 m2
3. Łazienka: 3,98 m2
4. Salon: 18,36 m2
5. Kuchnia + jadalnia: 12,91m2
6. Garaż: 16,97 m2
7. Kotłownia: 5,51 m2

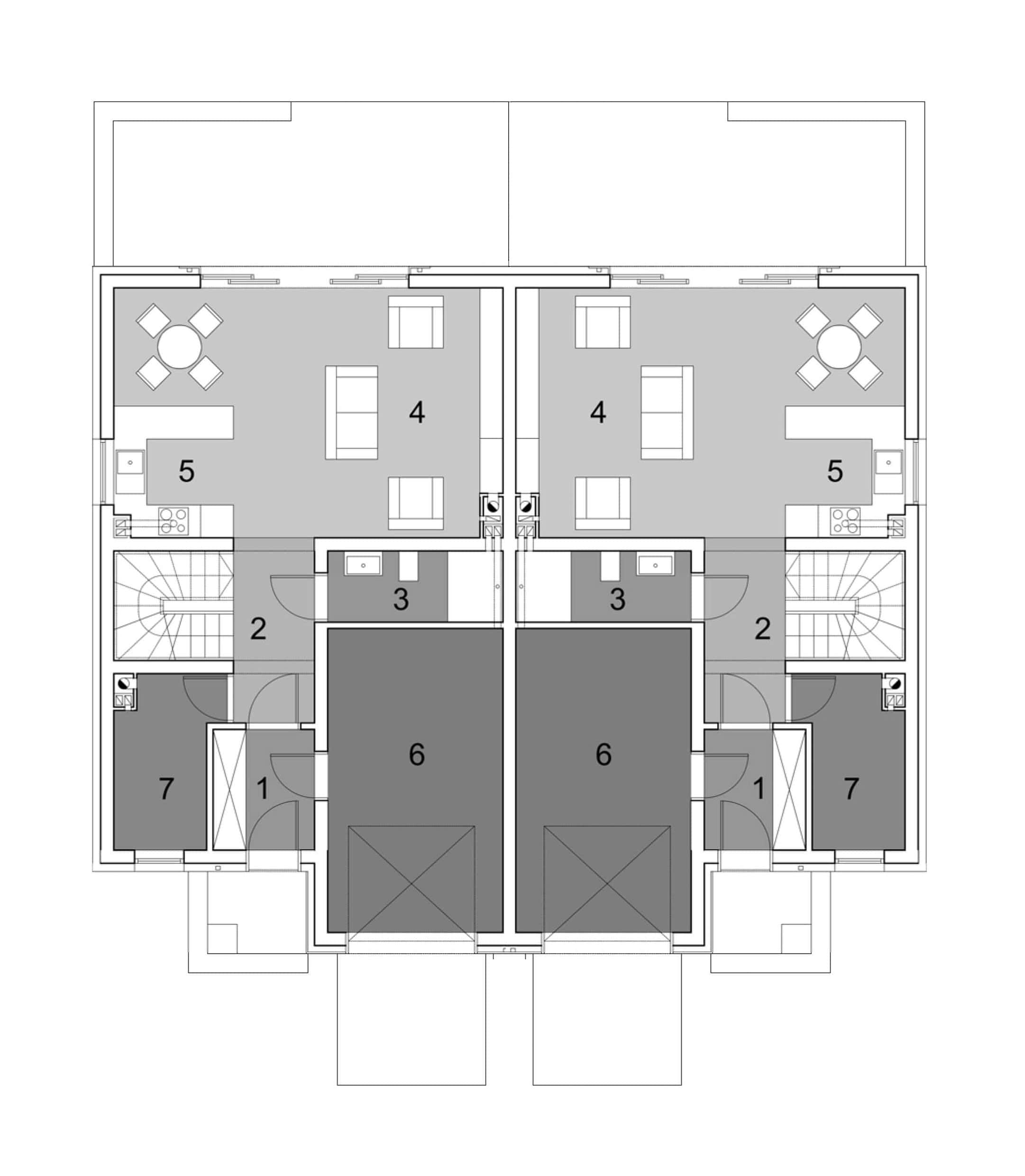
RZUT PIĘTRA

11. Korytarz: 5,23 m2
12. Łazienka: 7,7 m2
13. Pokój: 14,83 m2
14. Garderoba: 4,09 m2
15. Pokój: 13,93 m2
16. Pokój: 14,16 m2

ELEWACJE

SYTUACJA NA DZIAŁCE

PRZEKRÓJ

ZUŻYCIE ENERGII

Projekt domu zgodny z przepisami   WT 2021  
Wskaźnik EP dla domu z wentylacją grawitacyjną (szczegółowe dane w charakterystyce energetycznej)
EP = 69,11 kWh/m2*rok

SZACUNKOWE KOSZTY BUDOWY

Standardowe (uśrednione) [zł]
  • Stan surowy otwarty (Ściany, stropy, więźba dachowa, pokrycie dachu): 270.000
  • Stan surowy zamknięty(stan surowy otwarty wzbogacony o okna, drzwi oraz bramę garażową): 315.000
  • Stan deweloperski (stan surowy zamknięty wzbogacony o instalacje, wylewki, tynki zewnętrzne oraz wewnętrzne,): 487.000
Ceny wyliczone według współczynników.

TECHNOLOGIA I KONSTRUKCJA

Konstrukcja oraz propozycje materiałowe zastosowane w projekcie:
  • ściany: bloczek z betonu komórkowego Ytong ENERGO24 cm, wełna Isover TF PROFI, tynk
  • strop: Teriva
  • dach: dwuspadowy nachylnie 35', tradycyjna więźba, dachówka betonowa lub ceramiczna, okno dachowe VELUX
  • ogrzewanie: gazowe
  • wentylacja: grawitacyjna

OPIS PROJEKTU

Eco 12 to dom przeznaczony do zabudowy bliźniaczej lub jednorodzinnej dwu lokalowej. Doskonały dla czteroosobowej rodziny, przyciąga uwagę nowoczesną stylistyką. Prosta bryła zagwarantuje niskie koszty budowy.
Strefę dzienną stanowi przestronny i doskonale doświetlony salon wraz z otwartą kuchnią. Praktycznym elementem projektu jest duża kotłownia oraz garaż z bezpośrednim wejściem do domu. Nocną strefę tworzą trzy duże sypialnie wraz z obszerną łazienką. Do głównej sypialni przylega garderoba oraz balkon. Funkcjonalną stronę projektu stanowią także liczne wnęki oferujące możliwość zabudowy.

ZOBACZ RÓWNIEŻ

Projekt domu Eco 12
Eco 12
Projekt domu Eco 15
Eco 15
Projekt domu Eco 21
Eco 21
Stropex
Aluron
Mitek
EMO
EOS
Velux